Praxis in Schönenwerd
Teilausbau
Praxis in 5012 Schönenwerd (SO) – Funktionales Design trifft medizinische Hygiene
In Schönenwerd wurde eine bestehende Praxis umfassend umgebaut und an
moderne Anforderungen von Funktion, Hygiene und Technik angepasst. Das Projekt
verbindet ein durchdachtes Raumkonzept mit hochwertigen Ausführungen,
praxisgerechten Details und gezielten Komfortlösungen für das Personal.
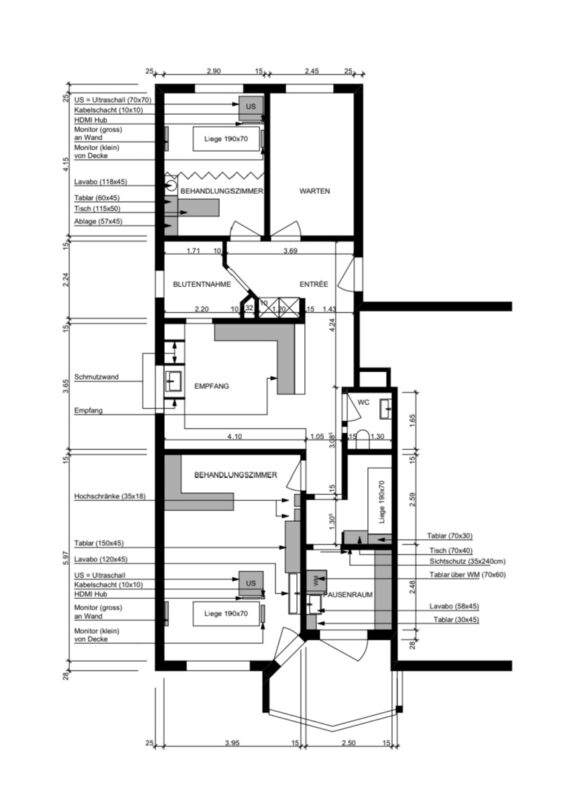
Komplettumbau und neues Raumkonzept
Die Praxis wurde strukturell überarbeitet und räumlich neu organisiert, um
Abläufe zu optimieren und klare Zonen zu schaffen:
- Wände neu gestellt zur Schaffung eines effizienten Raumflusses und klarer
Trennung von Patienten- und Personalbereichen - Neues Raumkonzept für Empfang, Behandlungszimmer, Technik- und Personalräume
mit optimierter Wegführung - Erstellung eines Pausenraumes mit Anschluss eines Lavabos und eines
Geschirrspülers, sodass das Personal während der Pausen hygienisch arbeiten
kann - Integration einer Balkontüre anstelle des vorherigen Fensters, damit das Praxisteam
während der Pausen direkt an die Luft gelangen kann, ohne Patientenbereiche
zu beeinrächtigen
Sanitär- und Elektroinstallationen
Alle technischen Versorgungen wurden auf den aktuellen Stand gebracht und
praxisgerecht positioniert:
- Teilweise Neuverlegung von Sanitärinstallationen inklusive der Anschlüsse
für Pausenraum‑Lavabo und Geschirrspüler - Komplette Erneuerung der Elektroinstallationen mit zusätzlichen Steckdosen,
Datenanschlüssen und Sicherheitsbeleuchtung an praxisrelevanten Stellen - Integration der neuen IT‑Anlage in die Elektroinfrastruktur für stabile
Netzwerkverbindungen und zentrale Technik.
Klima, Belüftung und Hygieneanforderungen
Komfort und Hygiene wurden technisch abgesichert:
- Klimageräte installiert zur Regelung von Temperatur und
Luftqualität in Behandlungs- und Personalräumen - Teilweise neue Vinylböden verlegt in stark frequentierten
Bereichen für einfache Reinigung - Geklebte Sockelleisten entsprechend den geltenden Hygienevorschriften
für nahtlose, desinfizierbare Übergänge
Schreinerarbeiten und Einbauten
Maßanfertigungen sorgen für langlebige, praxisgerechte Lösungen:
- Massgefertigte Schreinermöbel wie Garderobe, Arbeitstische und
Ablageflächen, exakt auf die Abläufe und Ergonomie der Praxis abgestimmt - Robuste, leicht zu reinigende Oberflächen und integrierte Kabelkanäle für
Technik und Geräte
Glaserarbeiten und Raumtrennung
Transparenz und Hygiene wurden durch gezielte Verglasungen umgesetzt:
- Installation von Milchglaswänden zur Trennung steriler Bereiche von
Schmutzbereichen, ohne Licht und Orientierung zu verlieren - Glaselemente mit leicht zu reinigenden Rahmen und Silikonfugen für
hygienische Trennzonen.
Malerarbeiten und Farbgestaltung
Die gesamten Innenräume wurden durch umfassende Maler- und Vorbereitungsarbeiten
neu strukturiert und gestaltet:
- Umfangreiche Gipser- und Vorbereitungsarbeiten zur Glättung und Sanierung
der Wände vor dem Anstrich - Ganze Praxis frisch gestrichen in einem abgestimmten Farbkonzept, das Ruhe,
Hygiene und Professionalität vermittelt - Auswahl von leicht zu reinigenden, schadstoffarmen Farben mit hoher Abriebfestigkeit
für häufig gereinigte Flächen - Akzentzonen in Empfang und Pausenraum zur Orientierung und Wohlbefinden des Personals;
dezente Kontrastfarben in Behandlungsbereichen zur besseren Orientierung - Abschluss mit einer Qualitätskontrolle der Oberflächen und einer Endreinigung, sodass die
Farbanstriche sofort den Praxisbetrieb zulassen
Beleuchtung und Designakzente
Funktionalität trifft beruhigende Gestaltung:
- Installation massgefertigter Designerlampen für gezielte Arbeitsbeleuchtung in
Behandlungs- und Empfangsbereichen - Praxisspezifisch indirekt beleuchtete Bilder zur Orientierung und zur Schaffung einer
beruhigenden Atmosphäre für Patienten
Türen, Zargen und Oberflächen
Robuste Details für den Praxisalltag:
- Maßgefertigte Türen und widerstandsfähige Zargen an stark frequentierten Durchgängen
- Einbau einer Schiebetüre für den Pausenraum für optimale Platzeinsparung
Logistik, Übergabe und Betriebssicherheit
Termintreue und minimale Unterbrechung des Praxisbetriebs standen im Fokus:
- Koordination der Lieferungen und Montagearbeiten mit Rücksicht auf laufende Abläufe
- Abschluss mit professioneller Endreinigung und technischer Abnahme, sodass die Praxis
bezugsfertig und betriebsbereit übergeben werden konnte - Dieses Umbauprojekt in Schönenwerd verbindet praxisgerechte Funktionalität, strenge
Hygieneanforderungen und modernes Design zu einer effizienten, angenehmen Arbeitsumgebung
für Personal und Patienten
